远东公寓在哪?远东公寓怎么样呢?远东公寓楼盘配套详情如何?本期,小编和大家一起来详细了解一下远东公寓,看看小区户型分析及热门在售二手房源。
地理位置优越,处人民路跟韶山路交界处。出行相当方便。该小区只有一栋高层塔楼。没有什么绿化,现在基本用于商住。
远东公寓地址:人民中路276号(人民中路和韶山中路交汇)
远东公寓附近9路、101路、122路、131路、142路、301路、 301路区间、301区、406路、 702路
根据房天下查房价数据显示,本月远东公寓二手房均价为5927.00,环比上月下降3.69%,同比去年下降2.42%。如果想具体了解远东公寓的房价走势情况,请点击 远东公寓房价走势。
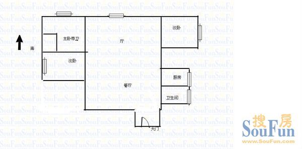
远东公寓3室2厅1卫1厨 户型图 3室2厅1卫1厨 131.00㎡
>>>查看更多本小区户型图
幼儿园:中南大学湘雅二医院幼儿园、新风一幼、颐美幼儿园一园
中小学:曙光路小学、桂花树小学、麻园湾小学、长塘里小学、枫树山小学鸿铭校区、长沙外国语学校、长沙市第十一中学
大学:中南大学湘雅二医院
商场:家润多购物广场朝阳门店、国美电器、长沙嘉可百货贸易有限公司
医院:中南大学湘雅二医院、亚韩医学美容医院、方泰医院、芙蓉区平价医院、长沙博大泌尿专科医院、长沙丽人妇产医院、长沙市传染病医院
邮局:邮政储蓄梓园路储蓄点
银行:长沙商业银行文艺支行、长沙中行长岭分理处、交行窑岭支行、长沙银行金兴支行、农行人民路支行、建行铁银支行
其它:杨裕兴(解放东路店)
内部配套:活动中心(舞台)、羽毛球场、儿童乐园、篮球场、健身器械区
推荐房源1:远东公寓3室2厅二手房 建筑面积:134.0㎡ 售价:82.0万(6119.4元/㎡)
推荐房源2:远东公寓3室1厅二手房 建筑面积:94.5㎡ 售价:65.0万(6878.31元/㎡)
推荐房源3:远东公寓3室2厅二手房 建筑面积:110.0㎡ 售价:74.0万(6727.27元/㎡)
相关推荐
长沙远东公寓怎么样?远东公寓房价户型及位置分析
更多>相关知识
长沙贷款买房流程
长沙如何办理房贷?
长沙房子备案查询方法有哪些 长沙房子备案流程是怎样的
长沙买房该如何贷款
长沙房产如何过户给亲人
房天下小程序
/
远东公寓在哪?远东公寓怎么样呢?远东公寓楼盘配套详情如何?本期,小编和大家一起来详细了解一下远东公寓,看看小区户型分析及热门在售二手房源。
远东公寓简介
地理位置优越,处人民路跟韶山路交界处。出行相当方便。该小区只有一栋高层塔楼。没有什么绿化,现在基本用于商住。
远东公寓地址在哪?交通状况如何?
远东公寓地址:人民中路276号(人民中路和韶山中路交汇)
远东公寓附近9路、101路、122路、131路、142路、301路、 301路区间、301区、406路、 702路
远东公寓房价走势
根据房天下查房价数据显示,本月远东公寓二手房均价为5927.00,环比上月下降3.69%,同比去年下降2.42%。如果想具体了解远东公寓的房价走势情况,请点击 远东公寓房价走势。
远东公寓户型图
远东公寓3室2厅1卫1厨 户型图 3室2厅1卫1厨 131.00㎡
>>>查看更多本小区户型图
远东公寓周边配套信息
幼儿园:中南大学湘雅二医院幼儿园、新风一幼、颐美幼儿园一园
中小学:曙光路小学、桂花树小学、麻园湾小学、长塘里小学、枫树山小学鸿铭校区、长沙外国语学校、长沙市第十一中学
大学:中南大学湘雅二医院
商场:家润多购物广场朝阳门店、国美电器、长沙嘉可百货贸易有限公司
医院:中南大学湘雅二医院、亚韩医学美容医院、方泰医院、芙蓉区平价医院、长沙博大泌尿专科医院、长沙丽人妇产医院、长沙市传染病医院
邮局:邮政储蓄梓园路储蓄点
银行:长沙商业银行文艺支行、长沙中行长岭分理处、交行窑岭支行、长沙银行金兴支行、农行人民路支行、建行铁银支行
其它:杨裕兴(解放东路店)
内部配套:活动中心(舞台)、羽毛球场、儿童乐园、篮球场、健身器械区
远东公寓二手房推荐
推荐房源1:远东公寓3室2厅二手房 建筑面积:134.0㎡ 售价:82.0万(6119.4元/㎡)
推荐房源2:远东公寓3室1厅二手房 建筑面积:94.5㎡ 售价:65.0万(6878.31元/㎡)
推荐房源3:远东公寓3室2厅二手房 建筑面积:110.0㎡ 售价:74.0万(6727.27元/㎡)